2 rum lägenhet i Göteborg
-
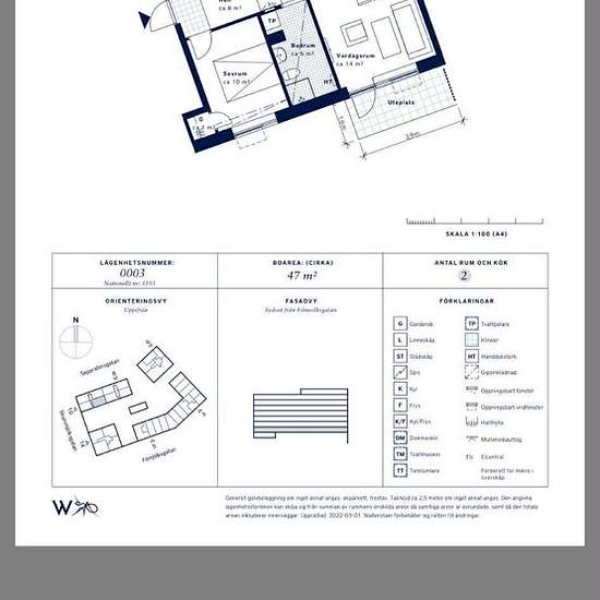
Yta
- 47 m²
-
Bostadstyp
- Lägenhet
-
Rum
- 2 rum
Tillgänglig nu
En fantastisk fin 2:a som söker lite kärlek . 47kvm Hyra 9187:- Bredband 300:- El och vatten läggs på hyran. Delvis möblerad säng , tv , soffa , matbord , lite förvaring. Jag hyr ut på grund av sambo och jobb i Stockholm. Serviceavgift för hyresgäst: 569
- Hyra
- 11 500 kr per månad
- Plats
- 41277, Göteborg
- Hyrestid
- -
- Verifierad hyresvärd
- Nej
- Datum
- 4 dagar sedan
- Tillgängligt
- Tillgänglig nu
- Driftkostnader
- Kontakta hyresvärden
- Deposition
- Kontakta hyresvärden
- Förbetald hyra
- Kontakta hyresvärden
Plats