2 rum lägenhet i Eskilstuna
-
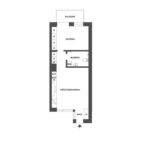
Yta
- 50 m²
-
Bostadstyp
- Lägenhet
-
Rum
- 2 rum
Tillgänglig nu
Boendet Ljus genomgångslägenhet om två rum och kök fördelat på 50 yteffektiva kvadratmeter. Bekvämt belägen på våning två av tre med hiss från markplan och egen entré via loftgång. Denna bostad är perfekt för dig som söker ett exklusivt boende nära stadskärnan. Här bor du med svårslaget läge bara ett stenkast från Eskilstunaån och med närhet till det mesta staden har att erbjuda. Bostaden erbjuder genomgående kvalitativa materialval, moderna färgsättningar och vattenburen golvvärme. Stora fönsterpartier i två väderstreck och en takhöjd om 2...
- Hyra
- 9 500 kr per månad
- Plats
- 63342, Eskilstuna
- Hyrestid
- -
- Verifierad hyresvärd
- Nej
- Datum
- Idag
- Tillgängligt
- Tillgänglig nu
- Driftkostnader
- Kontakta hyresvärden
- Deposition
- Kontakta hyresvärden
- Förbetald hyra
- Kontakta hyresvärden
Plats