2 rum lägenhet i Eskilstuna

Yta
50 m²
Bostadstyp
Lägenhet
Rum
2 rum

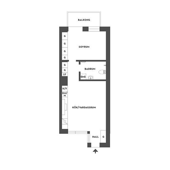
Boendet Ljus genomgångslägenhet om två rum och kök fördelat på 50 yteffektiva kvadratmeter. Bekvämt belägen på våning två av tre med hiss från markplan och egen entré via loftgång. Denna bostad är perfekt för dig som söker ett exklusivt boende nära stadskärnan. Här bor du med svårslaget läge bara ett stenkast från Eskilstunaån och med närhet till det mesta staden har att erbjuda. Bostaden erbjuder genomgående kvalitativa materialval, moderna färgsättningar och vattenburen golvvärme. Stora fönsterpartier i två väderstreck och en takhöjd om 2...

Hyra
9 500 kr per månad
Hyrestid
-
Verifierad hyresvärd
Nej
Datum
2 dagar sedan
Tillgängligt
2025-12-12
Driftkostnader
Kontakta hyresvärden
Deposition
Kontakta hyresvärden
Förbetald hyra
Kontakta hyresvärden
Plats