2 rum lägenhet i Ed

Yta
66 m²
Bostadstyp
Lägenhet
Rum
2 rum
Tillgänglig nu

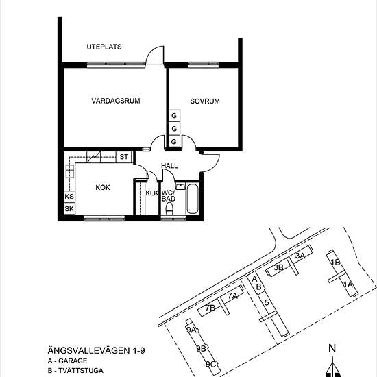
2 rum och kök i markplan. Lägenheten är utrustad med diskmaskin. ÄNGSVALLEVÄGEN 1-9 Här bor du i rymliga lägenheter i trivsamt område med vackra sjön Lilla Le som granne.

Hyra
6 741 kr per månad
Plats
66832, Ed
Hyrestid
-
Verifierad hyresvärd
Ja
Datum
4 dagar sedan
Tillgängligt
Tillgänglig nu
Driftkostnader
Kontakta hyresvärden
Deposition
Kontakta hyresvärden
Förbetald hyra
Kontakta hyresvärden
Plats