2 rum lägenhet i Ed

Yta
61 m²
Bostadstyp
Lägenhet
Rum
2 rum
Tillgänglig nu

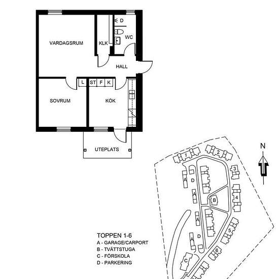
2 rum och kök på övre plan. Lägenheten är utrustad med diskmaskin, tvättmaskin och torktumlare. TOPPEN 1-6 Barnvänligt område med utsikt över Stora Lee. Här bor du nära till både badplats , skog och motionsgård.

Hyra
7 376 kr per månad
Plats
66831, Ed
Hyrestid
-
Verifierad hyresvärd
Ja
Datum
10 dagar sedan
Tillgängligt
Tillgänglig nu
Driftkostnader
Kontakta hyresvärden
Deposition
Kontakta hyresvärden
Förbetald hyra
Kontakta hyresvärden
Plats