2 rum lägenhet i Ed

Yta
63 m²
Bostadstyp
Lägenhet
Rum
2 rum

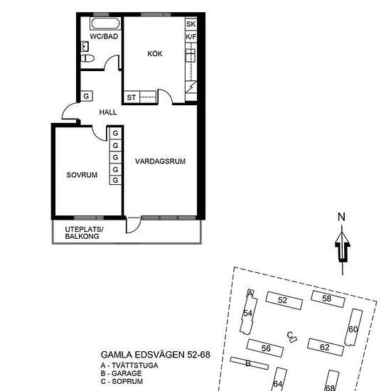
2 rum och kök på övre plan - 63 m2. GAMLA EDSVÄGEN 52-68 2-våningshus i trivsamt område, här finns både lek- och grillplats.

Hyra
6 246 kr per månad
Plats
66830, Ed
Hyrestid
-
Verifierad hyresvärd
Ja
Datum
4 dagar sedan
Tillgängligt
2026-04-01
Driftkostnader
Kontakta hyresvärden
Deposition
Kontakta hyresvärden
Förbetald hyra
Kontakta hyresvärden
Plats