2 rum lägenhet i Borås
-
Yta
- 59 m²
-
Bostadstyp
- Lägenhet
-
Rum
- 2 rum
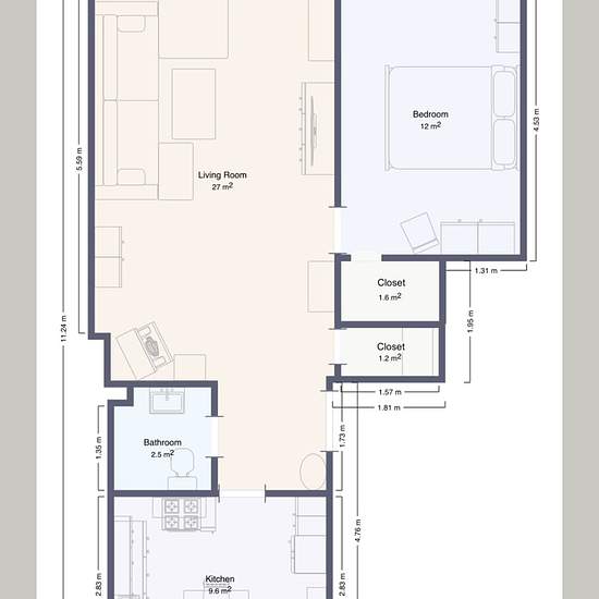
Renoverad 2:a på 59 m² – Götagatan 5B, Borås Nu finns möjligheten att hyra en ljus och rymlig 2:a på 59 m², belägen på andra våningen i en välskött fastighet. Lägenheten är renoverad och i mycket gott skick, med genomtänkta materialval och smart förvaring. Lägenhetsinformation: Kök – utrustat med rostfria vitvaror, inklusive diskmaskin. Badrum – helkaklat med golvvärme för extra komfort. Golv – vinylgolv i hall, kök och vardagsrum, parkettgolv i sovrum. Förvaring – två rymliga walk-in-closets. Balkong – söderläge med fint ljusinsläpp. Förr...
- Hyra
- 9 392 kr per månad
- Plats
- 50430, Borås
- Hyrestid
- -
- Verifierad hyresvärd
- Ja
- Datum
- Igår
- Tillgängligt
- 2026-04-01
- Driftkostnader
- Kontakta hyresvärden
- Deposition
- Kontakta hyresvärden
- Förbetald hyra
- Kontakta hyresvärden
Plats