2 rum lägenhet i Bandhagen
-
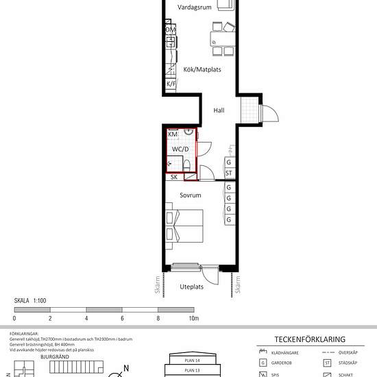
Yta
- 65 m²
-
Bostadstyp
- Lägenhet
-
Rum
- 2 rum
Tillgänglig nu
Köken är välutrustade med vita eleganta luckor från HTH. På golvet ligger en vacker ekparkett. Väggar, tak och lister är vitmålade. Badrummen ar helkaklade med stora vita blanka plattor på väggarna och beige klinker på golvet. De är även utrustade med duschvägg i glas, spegelskåp med belysning, kromad handdukstork samt krokar. Badrummen är också förberedda for tvättmaskin och torktumlare. Fastigheten ar rökfri och har en stor grön innergård med gemensam odling, sittyta med pergola Bara några minuters promenad bort ligger Rågsveds tunne...
- Hyra
- 16 793 kr per månad
- Plats
- 12463, Bandhagen
- Hyrestid
- -
- Verifierad hyresvärd
- Ja
- Datum
- 4 dagar sedan
- Tillgängligt
- Tillgänglig nu
- Driftkostnader
- Kontakta hyresvärden
- Deposition
- Kontakta hyresvärden
- Förbetald hyra
- Kontakta hyresvärden
Plats