1 rum lägenhet i Vega
-
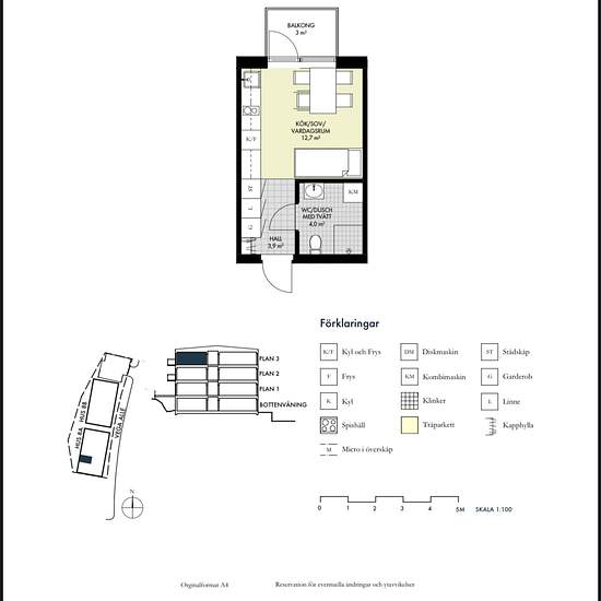
Yta
- 21 m²
-
Bostadstyp
- Lägenhet
-
Rum
- 1 rum
Tillgänglig nu
Mysig 1:a i Vega, Haninge – 9 500 kr/mån (inkl. el, värme & vatten) Ljus och välplanerad 1:a på 21 kvm uthyres i ett nybyggt och modernt lägenhet i Vega. Nära pendeltåg (ca 25 min till Stockholm C) Lägenheten har öppen planlösning, stora fönster och fräscha ytskikt – perfekt för en person som vill bo bekvämt med bra pendlingsmöjligheter! Hyra: 9 500 kr/mån I hyran ingår: El, värme och vatten Inflytt: Så snart som möjligt Hyresperiod: 6 månader – med möjlighet till förlängning Deposition: 1 månad Krav: Skötsam, rökfri, fast inkomst, ...
- Hyra
- 9 500 kr per månad
- Plats
- 13657, Vega
- Hyrestid
- -
- Verifierad hyresvärd
- Nej
- Datum
- 29 dagar sedan
- Tillgängligt
- Tillgänglig nu
- Driftkostnader
- Kontakta hyresvärden
- Deposition
- Kontakta hyresvärden
- Förbetald hyra
- Kontakta hyresvärden
Plats