1 rum lägenhet i Västra Frölunda
-
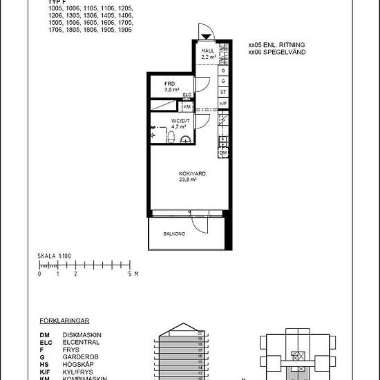
Yta
- 34 m²
-
Bostadstyp
- Lägenhet
-
Rum
- 1 rum
Välplanerad etta med balkong! Denna välplanerade och ljusa etta om 34,4 kvm innehar stora öppna ytor och rikligt med ljusinsläpp. Du välkomnas av en hall med goda förvaringsmöjligheter som ansluter till kök och toalett, båda med moderna ytskikt. I anslutning till köket förs du vidare till vardagsrummet som har rikligt med ljusinsläpp och tillgång till balkong. Helkaklat badrum med dusch och kombimaskin. Standardinfo om lägenheten: Väggarna är vitmålade och golven består av parkett i samtliga rum. Badrummet är helkaklat i en ljusgrå ton oc...
- Hyra
- 7 934 kr per månad
- Plats
- 42141, Västra Frölunda
- Hyrestid
- -
- Verifierad hyresvärd
- Ja
- Datum
- 4 dagar sedan
- Tillgängligt
- 2026-04-01
- Driftkostnader
- Kontakta hyresvärden
- Deposition
- Kontakta hyresvärden
- Förbetald hyra
- Kontakta hyresvärden
Plats