1 rum lägenhet i Västerås

Yta
41 m²
Bostadstyp
Lägenhet
Rum
1 rum

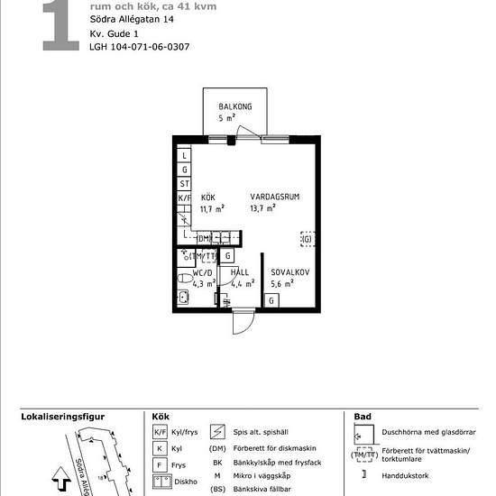
Välkommen till ett hem i centrala Västerås där stadsliv möter lugn och trivsel! Med närhet till citys shopping, restauranger och bra kommunikationer har du allt du behöver inom räckhåll. Samtidigt kan du njuta av grönområden och parkmiljöer som ger en härlig balans mellan stadens puls och naturens lugn. Ett perfekt val för dig som vill ha ett bekvämt boende med enkel tillgång till allt som Västerås har att erbjuda. Välplanerad 1:a med sovalkov och balkong i söderläge! Välkommen till en trivsam lägenhet med genomgående parkettgolv som sk...

Hyra
7 296 kr per månad
Hyrestid
-
Verifierad hyresvärd
Ja
Datum
Igår
Tillgängligt
2026-05-01
Driftkostnader
Kontakta hyresvärden
Deposition
Kontakta hyresvärden
Förbetald hyra
Kontakta hyresvärden
Plats