1 rum lägenhet i Täby
-
Yta
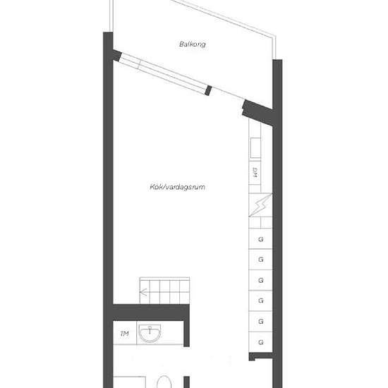
- 46 m²
-
Bostadstyp
- Lägenhet
-
Rum
- 1 rum
Unik och fin lägenhet i Täby, Roslags Näsby uthyres! Inträde februari. Vi söker nya hyresgäster då våra nuvarande har köpt en egen bostad och flyttar tyvärr ut. Lägenheten är 1,5 på 46kvm (inkl etage på 11kvm) med takhöjd på 4,2m i kök/allrum och 1,85m på övervåning (sovrum). Lägenheten hyrs ut omöblerad med diskmaskin, tvätt och tork kombimaskin samt halv inglasad balkong på 7kvm. Går även att nyttja lägenhetshusets takterrass med ett stort orangeri med tillgång till grill, sittplatser, utomhus gym och lokal. Eget förråd finns tyvärr in...
- Hyra
- 14 000 kr per månad
- Plats
- 18330, Täby
- Hyrestid
- -
- Verifierad hyresvärd
- Nej
- Datum
- 2 dagar sedan
- Tillgängligt
- 2026-02-01
- Driftkostnader
- Kontakta hyresvärden
- Deposition
- Kontakta hyresvärden
- Förbetald hyra
- Kontakta hyresvärden
Plats