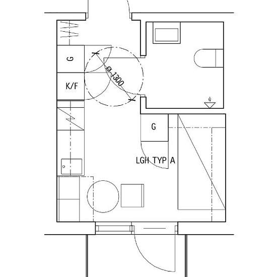
1 rum lägenhet i Spånga
-
Yta
- 16 m²
-
Bostadstyp
- Lägenhet
-
Rum
- 1 rum
Tillgänglig nu
Kliv in i din egen fristad, där stil möter funktionalitet. Dessa smarta lägenheter är genomtänkta och utrustade med allt du behöver för en bekväm livsstil. Från smarta förvaringslösningar till fullt utrustade kök och mysiga balkonger erbjuder vi en plats som känns som hemma från det ögonblick du kliver in. Dessutom finns spännande bekvämligheter som höghastighetsinternet och tvättmöjligheter lätt tillgängliga för din bekvämlighet. I de gemensamma lokalerna finns ytor för social samvaro såsom gym, biorum, stora kök och studiesal, helt gratis!...
- Hyra
- 6 727 kr per månad
- Plats
- 16357, Spånga
- Hyrestid
- -
- Verifierad hyresvärd
- Nej
- Datum
- Idag
- Tillgängligt
- Tillgänglig nu
- Driftkostnader
- Kontakta hyresvärden
- Deposition
- Kontakta hyresvärden
- Förbetald hyra
- Kontakta hyresvärden
Plats