1 rum lägenhet i Solna

Yta
25 m²
Bostadstyp
Lägenhet
Rum
1 rum
Tillgänglig nu

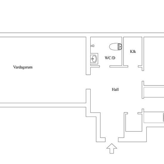
Rum uthyres i populärt & centralt område i Råsunda, Solna! Pris & vad som ingår: - Hyran 7900 kr, ingår: El, vatten (kallt & varmt) & internet. - Rummet är avsett för en person. - Du har tillgång till din egen balkong via rummet. - Köket är fullt utrustat (kyl/frys, spis, ugn, diskmaskin). - Tvättstuga finns i källaren. - Lägenheten är möblerad om så önskas. Området & Lägenheten: Vi söker en inneboende till vår rymliga och välskötta tvåa i ett lugnt och eftertraktat område. Boendet är perfekt för dig som söker ett tryggt och praktiskt boen...

Hyra
7 900 kr per månad
Plats
16953, Solna
Hyrestid
-
Verifierad hyresvärd
Nej
Datum
Idag
Tillgängligt
Tillgänglig nu
Driftkostnader
Kontakta hyresvärden
Deposition
Kontakta hyresvärden
Förbetald hyra
Kontakta hyresvärden
Plats