1 rum lägenhet i Solna
-
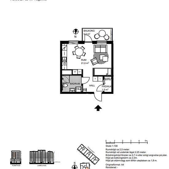
Yta
- 34 m²
-
Bostadstyp
- Lägenhet
-
Rum
- 1 rum
Tillgänglig nu
Ljus och modern lägenhet i attraktiva Haga Palett, Solna Välkommen till en stilren och nyproducerad lägenhet (byggår 2023) i populära Haga Palett på Solnavägen 13A. Lägenheten ligger i ett nybyggt kvarter med modern arkitektur, stora fönsterpartier och genomtänkta materialval. Planlösning Lägenheten har en öppen och luftig planlösning med ett modernt kök i anslutning till vardagsrummet. Sovalkoven har plats för en 90 cm säng och goda förvaringsmöjligheter, och badrummet är helkaklat med kombinerad tvättmaskin och torktumlare. Genomgående ...
- Hyra
- 15 000 kr per månad
- Plats
- 17165, Solna
- Hyrestid
- -
- Verifierad hyresvärd
- Nej
- Datum
- 20 dagar sedan
- Tillgängligt
- Tillgänglig nu
- Driftkostnader
- Kontakta hyresvärden
- Deposition
- Kontakta hyresvärden
- Förbetald hyra
- Kontakta hyresvärden
Plats