1 rum lägenhet i Reftele
-
Yta
- 52 m²
-
Bostadstyp
- Lägenhet
-
Rum
- 1 rum
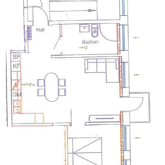
Uthyrning av 2:a med kök på andra våning på Järnvägsgatan 6a i Reftele. Lägenheten är nyrenoverad 2019 med vitmålade väggar i alla rum, vinylparkettgolv och vita dörrar, 2,60 meter i takhöjd. Dessutom har lägenheten aluminiumfönster med 3-glas isoleringsrutor med barnspärr. Balkongen är mot sydväst och har sol under större delen av dagen. Köket är nybyggt med massiv ek-skiva till arbetsbänk, vitt kakelstänkskydd och väggskåp från Marbodal. Köket har rostfri spis med keramik-häll och moderna rostfria vitvaror. Toaletten är nybyggd med vitt ka...
- Hyra
- 7 324 kr per månad
- Plats
- 33375, Reftele
- Hyrestid
- -
- Verifierad hyresvärd
- Nej
- Datum
- 13 dagar sedan
- Tillgängligt
- Kontakta hyresvärden
- Driftkostnader
- Kontakta hyresvärden
- Deposition
- Kontakta hyresvärden
- Förbetald hyra
- Kontakta hyresvärden
Plats