
1 rum lägenhet i Piteå
-
Yta
- 56 m²
-
Bostadstyp
- Lägenhet
-
Rum
- 1 rum
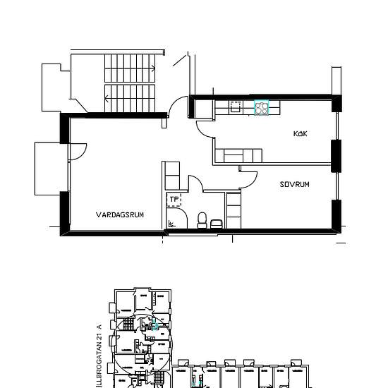
OBS! den publicerade hyran avser 2025 års hyresnivå Trevlig tvårumslägenhet belägen på Lillbrogatan 21. Lägenheten har stort och luftigt vardagsrum, stort badrum som är förberett med tvättpelare för dig som vill sätta in egen tvättmaskin. Sovrummet rymmer en dubbelsäng samt nattduksbord på vardera sida. Denna mysiga lägenhet vill du inte gå miste om! Lägenheten är renoverad 2019 Till lägenheten hör ett förråd i samma hus & gemensam tvättstuga som är placerad på bottenvåningen. Tillkommande avgifter: Hushållsel, internet & eventuell parkering...
- Hyra
- 7 934 kr per månad
- Plats
- 94133, Piteå
- Hyrestid
- -
- Verifierad hyresvärd
- Ja
- Datum
- Idag
- Tillgängligt
- 2026-03-01
- Driftkostnader
- Kontakta hyresvärden
- Deposition
- Kontakta hyresvärden
- Förbetald hyra
- Kontakta hyresvärden
Plats