1 rum lägenhet i Oskarshamn
-
Yta
- 39 m²
-
Bostadstyp
- Lägenhet
-
Rum
- 1 rum
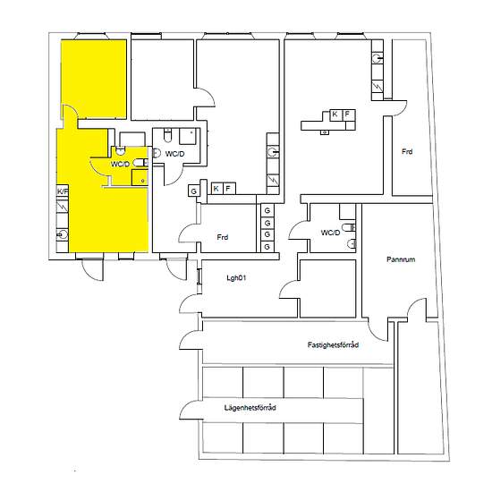
1rok i centrala Oskarshamn. (avser den gul markerade lägenheten på ritningen) Gemensam tvättstuga. El tillkommer efter förbrukning. Här bor du mitt i Oskarshamn med närhet till mataffärer, butiker, restauranger, ishall, hamnen och gym.
- Hyra
- 6 455 kr per månad
- Plats
- 57230, Oskarshamn
- Hyrestid
- -
- Verifierad hyresvärd
- Nej
- Datum
- Idag
- Tillgängligt
- 2026-06-01
- Driftkostnader
- Kontakta hyresvärden
- Deposition
- Kontakta hyresvärden
- Förbetald hyra
- Kontakta hyresvärden
Plats