1 rum lägenhet i Kävlinge

Yta
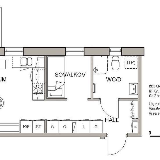
38 m²
Bostadstyp
Lägenhet
Rum
1 rum

Ljus och välplanerad 1 rok med moderna materialval. Lägenheten har vita väggar och ett öppet vardagsrum med kök i anslutning till en trivsam uteplats. Det lilla sovrummet är målat i en ljusgrå ton och ger en mysig och ombonad känsla. Badrummet har vitt/ grått kaklade väggar och plastmatta i grå nyans, utrustat med egen tvättmaskin. Uteplats med utgång från vardagsrum. En perfekt bostad för dig som söker ett stilrent och lättskött hem. Tvättstugor och miljöhus finns i separata byggnader inom kvarteret. Förråd finns i källaren. P-plats och/el...

Hyra
6 209 kr per månad
Hyrestid
-
Verifierad hyresvärd
Ja
Datum
Igår
Tillgängligt
2026-05-01
Driftkostnader
Kontakta hyresvärden
Deposition
Kontakta hyresvärden
Förbetald hyra
Kontakta hyresvärden
Plats