1 rum lägenhet i Höör
-
Yta
- 30 m²
-
Bostadstyp
- Lägenhet
-
Rum
- 1 rum
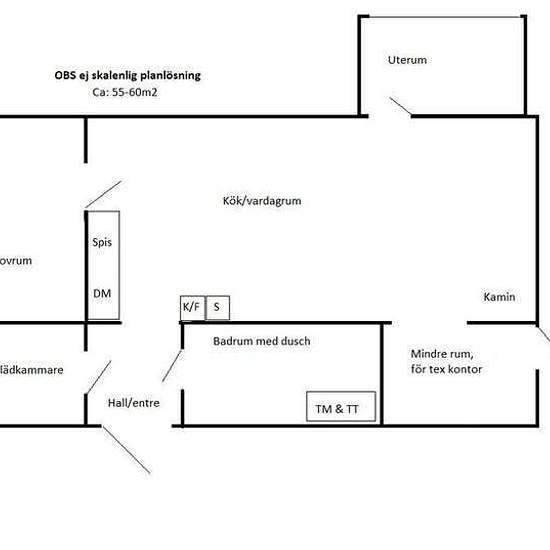
Folke svens väg 19, Bokeslund Höör Mysigt litet hus uthyres tillsvidare 2 rok, ca 55-60m2 Tvättmaskin Torktumlare Diskmaskin Uterum Lättskött trädgård Ligger ca 5-10 min till Höörs centrum och tågstationen Hyra är 8900:-/mån där endast el för uppvärmning och hushåll tillkommer. Kamin 1 månads deposition tillämpas Tillträde 1 februari 2026
- Hyra
- 8 900 kr per månad
- Plats
- 24332, Höör
- Hyrestid
- -
- Verifierad hyresvärd
- Nej
- Datum
- 7 dagar sedan
- Tillgängligt
- Kontakta hyresvärden
- Driftkostnader
- Kontakta hyresvärden
- Deposition
- Kontakta hyresvärden
- Förbetald hyra
- Kontakta hyresvärden
Plats