1 rum lägenhet i Handen
-
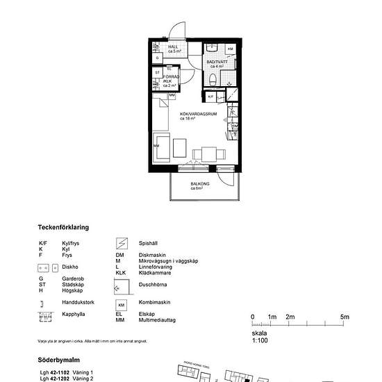
Yta
- 30 m²
-
Bostadstyp
- Lägenhet
-
Rum
- 1 rum
Välkommen till Kvarter Nova i Handen som erbjuder moderna lägenheter i ett naturskönt område med närhet till Rudans friluftsområde och naturreservat, med stora gräsytor, lekplatser, utegym och badplatser. Under vintertid prepareras skidspår och på Övre Rudasjön plogas en skridskobana fram. En kortare cykeltur bort hittar du Haninge centrum - och alla dess olika butiker, restauranger och service. Alla lägenheter har en god standard i materialval med moderna kök utrustade med mikrovågsugn, diskmaskin och funktionella arbetsytor. Varje lägenhet...
- Hyra
- 7 651 kr per månad
- Plats
- 13636, Handen
- Hyrestid
- -
- Verifierad hyresvärd
- Ja
- Datum
- Igår
- Tillgängligt
- 2026-02-01
- Driftkostnader
- Kontakta hyresvärden
- Deposition
- Kontakta hyresvärden
- Förbetald hyra
- Kontakta hyresvärden
Plats