1 rum lägenhet i Hägersten
-
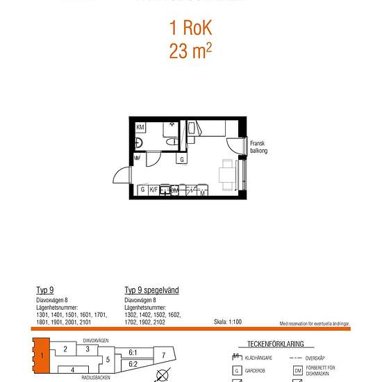
Yta
- 23 m²
-
Bostadstyp
- Lägenhet
-
Rum
- 1 rum
Nytt beslut för hyreshöjning om 3,5 % kommer att gälla från och med den 1 mars 2026. Notera att ingen visning kommer att erbjudas. Lägenheterna präglas av en öppen planlösning som ger en rymlig och luftig känsla. De stilrena interiörerna kompletteras av vitlaserade parkettgolv och väggar målade i ljusa nyanser. Köken är utrustade med högkvalitativa vitvaror och erbjuder både goda arbetsytor och gott om förvaringsutrymmen. Badrummen är designade med tanke på komfort och funktionalitet, med moderna duschlösningar samt en kombinerad tvättmask...
- Hyra
- 8 464 kr per månad
- Plats
- 12629, Hägersten
- Hyrestid
- -
- Verifierad hyresvärd
- Ja
- Datum
- Igår
- Tillgängligt
- 2026-04-01
- Driftkostnader
- Kontakta hyresvärden
- Deposition
- Kontakta hyresvärden
- Förbetald hyra
- Kontakta hyresvärden
Plats