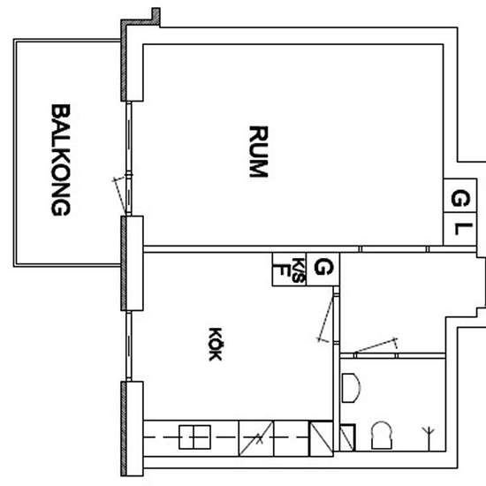
1 rum lägenhet i Grums
-
Yta
- 40 m²
-
Bostadstyp
- Lägenhet
-
Rum
- 1 rum
Centralt beläget bostadsområde i Grums. Vissa trappuppgångar har hiss. Här bor du nära livsmedelsbutiker och andra affärer, apotek, systembolag, buss- och tågstation, bibliotek, kommunhus, vårdcentral, folktandvård, sporthall- och badhus och skola för åk 4-9 (Jättestenskolan).
- Hyra
- 5 091 kr per månad
- Plats
- 66430, Grums
- Hyrestid
- -
- Verifierad hyresvärd
- Ja
- Datum
- Igår
- Tillgängligt
- 2026-02-01
- Driftkostnader
- Kontakta hyresvärden
- Deposition
- Kontakta hyresvärden
- Förbetald hyra
- Kontakta hyresvärden
Plats