1 rum lägenhet i Göteborg
-
Yta
- 28 m²
-
Bostadstyp
- Lägenhet
-
Rum
- 1 rum
Tillgänglig nu
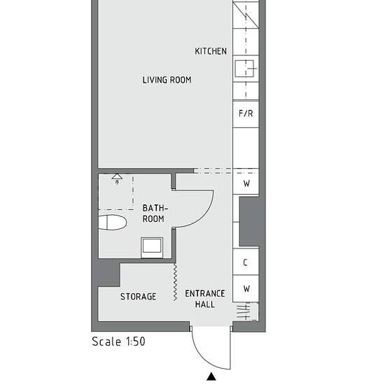
Jag planerar att flytta då jag ska provbo tillsammans med min partner, och söker därför en ny hyresgäst till min bostad. Välkommen till en smart planerad och trivsam etta på Gibraltarvallsvägen 2, belägen på våning 2 av 6 i Gibraltar Guesthouse. Här erbjuds 28 välutnyttjade kvadratmeter med en genomtänkt planlösning som passar perfekt för både studier och vardagsliv. Bostaden har ett ljust och luftigt allrum med integrerad köksdel, där det finns gott om plats för säng, skrivbord och en mindre soffhörna. Den öppna dispositionen skapar en ryml...
- Hyra
- 8 000 kr per månad
- Plats
- 41258, Göteborg
- Hyrestid
- -
- Verifierad hyresvärd
- Nej
- Datum
- 16 dagar sedan
- Tillgängligt
- Tillgänglig nu
- Driftkostnader
- Kontakta hyresvärden
- Deposition
- Kontakta hyresvärden
- Förbetald hyra
- Kontakta hyresvärden
Plats