1 rum lägenhet i Bandhagen
-
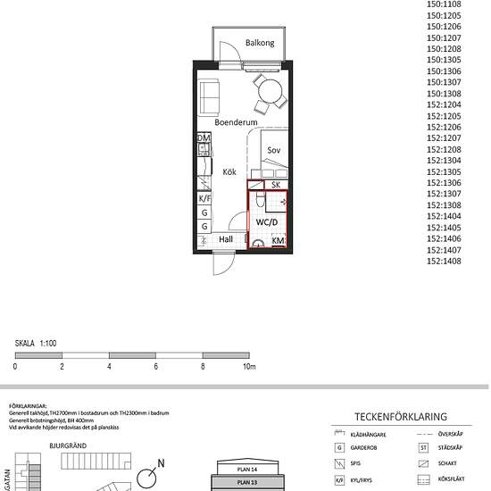
Yta
- 30 m²
-
Bostadstyp
- Lägenhet
-
Rum
- 1 rum
Välkommen till Bjurbäcken 11 – modernt, ljust och bekvämt nära city På Bjurbäcken 11 bor du i ett modernt hem med balkong mot grön innergård, stilrena materialval och bekväma lösningar i varje detalj. Härifrån tar du dig till Stockholms city på cirka 20 minuter med tunnelbana från Rågsveds station, som ligger bara några minuters promenad bort. Varje lägenhet har eget källarförråd och Telia TV Start ingår. Tack vare individuell mätning av el och vatten (IMD) har du full kontroll över dina kostnader – och värmen ingår i hyran. Köken har vit...
- Hyra
- 10 988 kr per månad
- Plats
- 12463, Bandhagen
- Hyrestid
- -
- Verifierad hyresvärd
- Ja
- Datum
- Idag
- Tillgängligt
- 2026-02-02
- Driftkostnader
- Kontakta hyresvärden
- Deposition
- Kontakta hyresvärden
- Förbetald hyra
- Kontakta hyresvärden
Plats