1 rum hus i Enebyberg
-
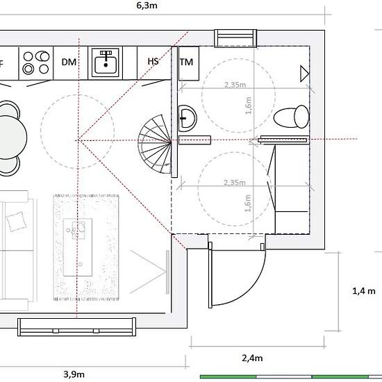
Yta
- 30 m²
-
Bostadstyp
- Hus
-
Rum
- 1 rum
Attefallshus om 30 m2 plus sovloft och uteplats, företrädesvis för en person utan husdjur. Fullt möblerat och utrustat: • Kök med spis, ugn, kyl, frys, diskmaskin, mat- och serveringsporslin, köksredskap. • Vardagsrum med bäddsoffa, soffbord, garderob, förvaringsskåp, köksbord och stolar. • Trästege leder upp till sovloftet som är möblerat med en 140 cm dubbelsäng med förvaringsutrymme på båda sidor. En fönsterkupa ger ljus och gör sovloftet rymligt. • Badrum med ett litet vädringsfönster, dusch, kombinerad tvättmaskin och torktumlare, ...
- Hyra
- 10 500 kr per månad
- Plats
- 18248, Enebyberg
- Hyrestid
- -
- Verifierad hyresvärd
- Nej
- Datum
- 4 dagar sedan
- Tillgängligt
- 2026-02-01
- Driftkostnader
- Kontakta hyresvärden
- Deposition
- Kontakta hyresvärden
- Förbetald hyra
- Kontakta hyresvärden
Plats