-
3 rum lägenhet i Uddevalla
3 rum lägenhet i Uddevalla
3 Rum - Lägenhet - 75 m²45196, Uddevalla
-
Yta
- 75 m²
-
Bostadstyp
- Lägenhet
-
Rum
- 3
-
-
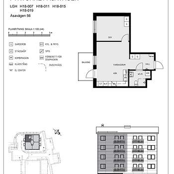
2 rum lägenhet i Uddevalla
2 rum lägenhet i Uddevalla
2 Rum - Lägenhet - 54 m²Uddevalla
-
Yta
- 54 m²
-
Bostadstyp
- Lägenhet
-
Rum
- 2
-
Hitta lägenheter i Sundsandvik+sund (del av), Uddevalla kommun Sök efter alla lägenheter här
-2 bostäder
Vad tycker du om Sundsandvik+sund (del av), Uddevalla kommun? Dela din åsikt med andra här
Inga recensioner än