4 rum hus i Åkersberga
-
Yta
- 118 m²
-
Bostadstyp
- Hus
-
Rum
- 4 rum
Tillgänglig nu
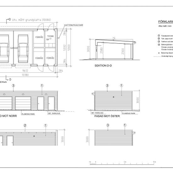
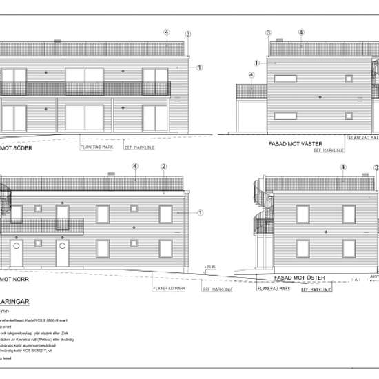
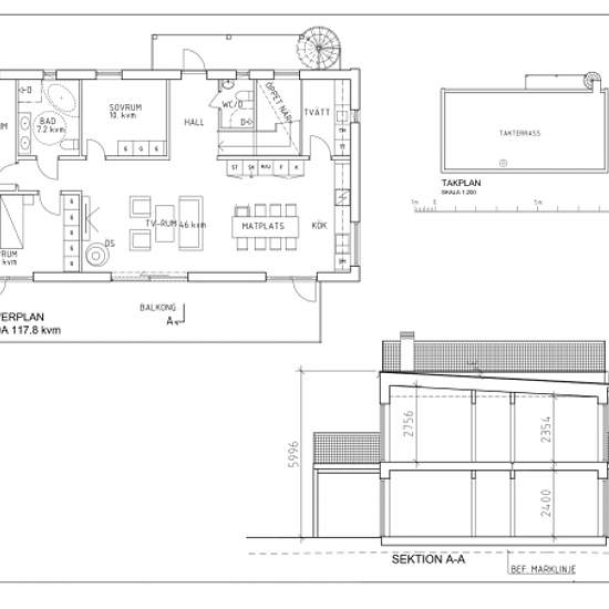
Stor bostad med egen ingång och stora fönsterpartier i söderläge är planerad i en 2-plan villa för uthyrning. Denna moderna bostad är på andra våning med stor takterrass och bra utsikt runt omkring. En trevlig boendemiljö i en villa belägen i ett ganska nytt villaområde i Bro med egen avfart från E18. Ett separat eget förråd i garagebyggnad tillhör bostaden. Varmt garage kan tillhandahållas mot månadsavgift. En arkitektritad och välplanerad villa med 118 kvm per våningsplan i ett nytt villaområde är under produktion. Här bor ni i ett miljös...
- Hyra
- 27 000 kr per månad
- Plats
- stockholm
- Hyrestid
- -
- Verifierad hyresvärd
- Ja
- Datum
- 26 dagar sedan
- Tillgängligt
- Tillgänglig nu
- Driftkostnader
- Kontakta hyresvärden
- Deposition
- Kontakta hyresvärden
- Förbetald hyra
- Kontakta hyresvärden
Plats