8 room house in Hovås
-
Area
- 200 m²
-
Property type
- House
-
Rooms
- 8 rooms
Available now
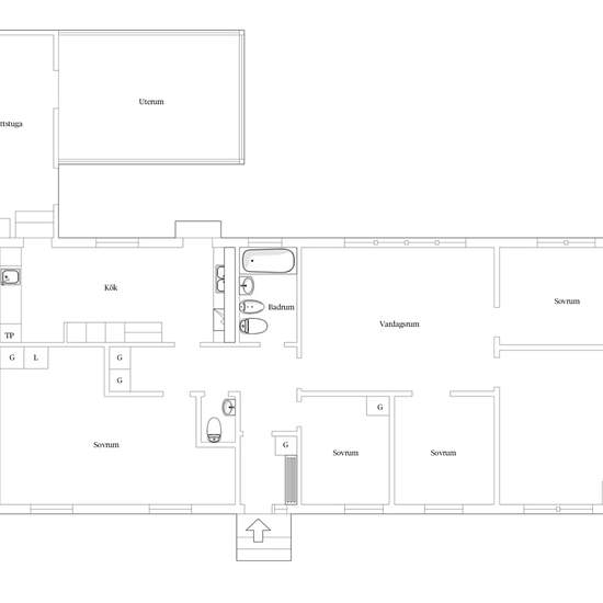
We are renting out two villas at Hovås Sandkulleväg 10 on a temporary basis for 6–12 months. The houses are in good condition but have older kitchens/bathrooms. Cozy garden. House 1 approx. 90 m2 14,000 SEK/month (the rear house in the photo) House 2 approx. 200 m2 19,000 SEK/month (the front house in the photo and shown in the floor plan) We are renting out the houses until further notice pending subdivision of the plot. Two months' mutual notice period. Electricity, water/sewage and waste collection are charged in addition to the rent. G...
- Rent
- kr14,000 per month
- Location
- 43650, Hovås
- Rental period
- -
- Verified landlord
- No
- Date
- Today
- Available
- Available now
- Utilities
- Contact landlord
- Deposit
- Contact landlord
- Prepaid rent
- Contact landlord
Location