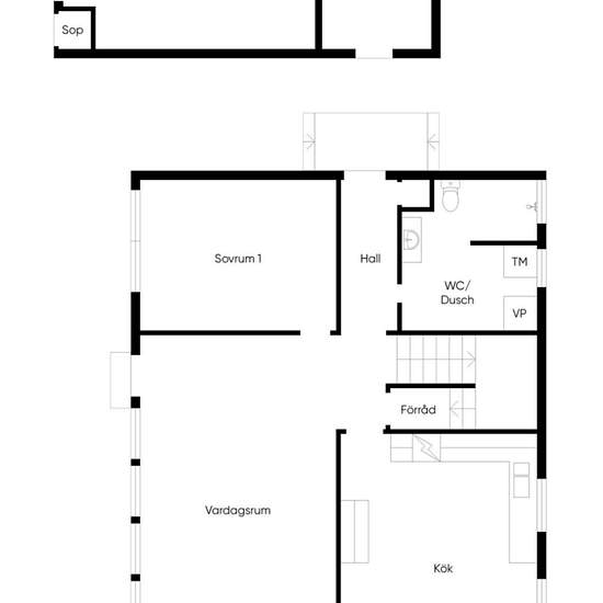
5 room house in Degerfors
-
Area
- 143 m²
-
Property type
- House
-
Rooms
- 5 rooms
Available now
Fully renovated corner villa next to Degernäs Golf and a lake, new fireplace in the living room, patio. 2 floors. Electricity not included — should be arranged by the tenant, as should home insurance. Plot 978 sqm. The house was built in 1978. Operating costs: 25,464 kr/year. Service fee for tenant: 608
- Rent
- kr12,300 per month
- Location
- 69335, Degerfors
- Rental period
- -
- Verified landlord
- No
- Date
- 13 days ago
- Available
- Available now
- Utilities
- Contact landlord
- Deposit
- Contact landlord
- Prepaid rent
- Contact landlord
Location