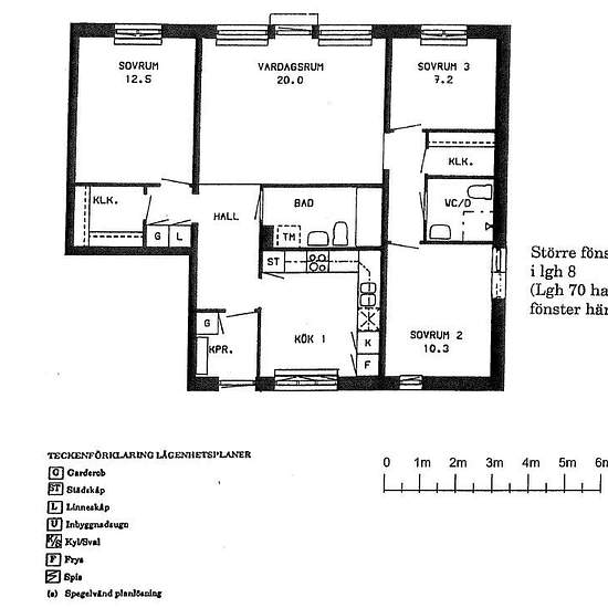
4 room apartment in Östersund
-
Area
- 92 m²
-
Property type
- Apartment
-
Rooms
- 4 rooms
The area is divided into three courtyards along a continuous pedestrian walkway. The area consists of eight multi-family buildings that are two to three storeys high. The three-storey buildings have stairwells, elevators and external gallery access. The apartments in the two-storey buildings all have their own entrance directly from ground level. Apartments range from 1 room and kitchen (46 sqm) to 5 rooms and kitchen (104 sqm). All apartments have a balcony or a private patio. There is also a community room and two laundry rooms. Electrici...
- Rent
- kr7,836 per month
- Location
- 83176, Östersund
- Rental period
- -
- Verified landlord
- No
- Date
- Yesterday
- Available
- 2026-04-01
- Utilities
- Contact landlord
- Deposit
- Contact landlord
- Prepaid rent
- Contact landlord
Location