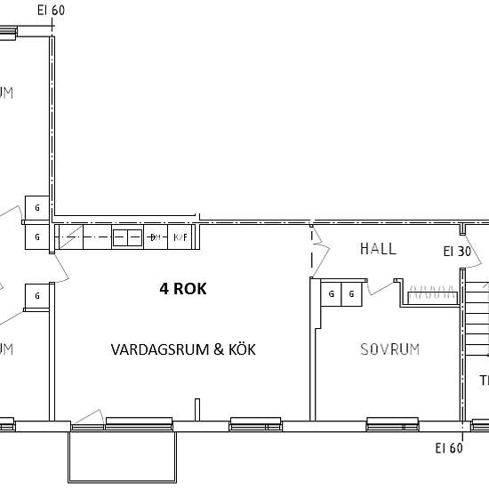
4 room apartment in Örnsköldsvik

Area
90 m²
Property type
Apartment
Rooms
4 rooms
Available now

Here is a bright, newly renovated apartment of 90 square meters with an open floor plan and windows on three sides. New kitchen from Marbodal with dishwasher. New floors and new windows. Light material choices in the apartment create a cohesive impression and increase the level of comfort. Relatively good storage with substantial wardrobes in the bedrooms. The apartment is on the third floor with a balcony in a sunny location and access to a large shared outdoor area in the backyard. Some view of Höglandssjön. Shared laundry room in the base...

Rent
kr10,293 per month
Rental period
-
Verified landlord
Yes
Date
3 days ago
Available
Available now
Utilities
Contact landlord
Deposit
Contact landlord
Prepaid rent
Contact landlord
Location