
4 room apartment in Örnsköldsvik
-
Area
- 90 m²
-
Property type
- Apartment
-
Rooms
- 4 rooms
Available now
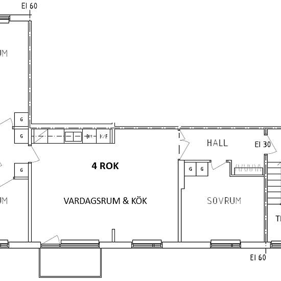
Här erbjuds en ljus och nyrenoverad lägenhet på 90 kvadrat med öppen planlösning och med fönster i tre väderstreck. Nytt kök från Marbodal med diskmaskin. Nya golv och nya fönster. Ljusa materialval i lägenheten ger ett sammanhållet intryck och höjer trivselfaktorn. Relativt gott om förvaring med ordentliga garderober i sovrummen. Lägenheten ligger på tredje våningen med balkong i soligt läge och tillgång till stor gemensam uteplats på bakgård. Viss utsikt över Höglandssjön. Gemensam tvättstuga i källarplan. OMGIVNING - Fastigheten ligger c...
- Rent
- kr9,950 per month
- Location
- 89141, Örnsköldsvik
- Rental period
- -
- Verified landlord
- Yes
- Date
- Today
- Available
- Available now
- Utilities
- Contact landlord
- Deposit
- Contact landlord
- Prepaid rent
- Contact landlord
Location