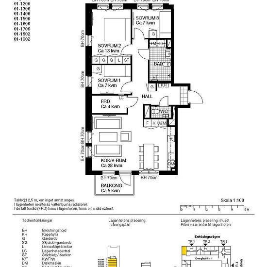
4 room apartment in Järfälla
-
Area
- 81 m²
-
Property type
- Apartment
-
Rooms
- 4 rooms
Available now
- Rent
- kr17,702 per month
- Location
- 17748, Järfälla
- Rental period
- -
- Verified landlord
- No
- Date
- 4 days ago
- Available
- Available now
- Utilities
- Contact landlord
- Deposit
- Contact landlord
- Prepaid rent
- Contact landlord
Location