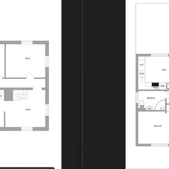
3 room house in Södertälje
-
Area
- 68 m²
-
Property type
- House
-
Rooms
- 3 rooms
Available now
Uthyrning av fristående total nyrenoverat villa i populära Rosenlund i Södertälje som vi använder som fritidshus. Villan hyres ut på långtid och är 68m2 i Entrévåning med öppen planlösning med kök & vardagsrum, 2 sovrum och badrum. Gångavstånd till busshållplats och köping centrum bl.a. Willys, Lidl I Källaren som är också 68m2 finns 6st rum varav tvättstuga/pannrum . 2 rum i källaren används som förråd och ej ingår i hyran! Nytt Kök, Nytt badrum. Nytt luftvärmepump, Tvättstugan är utrustade med tvättmaskin och torktumlare. Stor Altan m...
- Rent
- kr14,000 per month
- Location
- 15240, Södertälje
- Rental period
- -
- Verified landlord
- No
- Date
- 24 days ago
- Available
- Available now
- Utilities
- Contact landlord
- Deposit
- Contact landlord
- Prepaid rent
- Contact landlord
Location