3 room apartment in Skara
-
Area
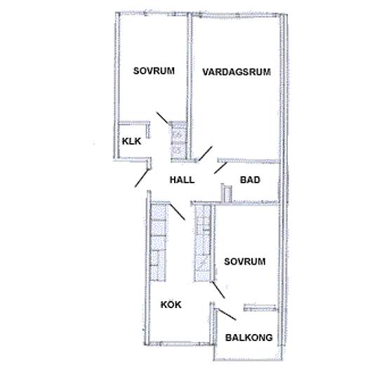
- 70 m²
-
Property type
- Apartment
-
Rooms
- 3 rooms
3-room apartment with balcony for rent from 1/10/25. The apartment is on the 3rd floor (no elevator). Heating and water are included in the rent. Fiber is available in the building (separate subscription required). Parking and garage are available to rent, subject to availability.
- Rent
- kr7,807 per month
- Location
- 53237, Skara
- Rental period
- -
- Verified landlord
- Yes
- Date
- 12 days ago
- Available
- Contact landlord
- Utilities
- Contact landlord
- Deposit
- Contact landlord
- Prepaid rent
- Contact landlord
Location