
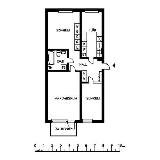
3 room apartment in Luleå
-
Area
- 76 m²
-
Property type
- Apartment
-
Rooms
- 3 rooms
Balcony Corner apartment Covered by the HLU fund
- Rent
- kr8,429 per month
- Location
- 97752, Luleå
- Rental period
- -
- Verified landlord
- Yes
- Date
- Today
- Available
- 2026-03-01
- Utilities
- Contact landlord
- Deposit
- Contact landlord
- Prepaid rent
- Contact landlord
Location