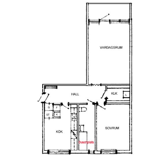
2 room apartment in Västerås

Area
67 m²
Property type
Apartment
Rooms
2 rooms
Available now

Hyresrabatt i 12 månader uppdelat i 3 olika perioder. Första perioden: 30% rabatt i 4 månader. Denna hyresrabatt är inkluderad i den hyra som visas i annonsen. Andra perioden: 20% rabatt i 4 månader, hyran blir 7 750:- Tredje perioden: 10% rabatt i 4 månader, hyran blir 8 718:- Ordinarie hyra efter rabatt är 9 687:- Hyran avser 2025 års hyresnivå. Lägenhet med balkong i trivsamt område - välkommen till ditt nya hem. Här bor du i en bostad med två rum och kök, där inget har lämnats åt slumpen. Modernt kök, badrum och fräscha golv gör var...

Rent
kr6,781 per month
Rental period
-
Verified landlord
No
Date
Today
Available
Available now
Utilities
Contact landlord
Deposit
Contact landlord
Prepaid rent
Contact landlord
Location