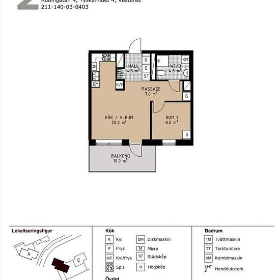
2 room apartment in Västerås
-
Area
- 45 m²
-
Property type
- Apartment
-
Rooms
- 2 rooms
Available now
Är du intresserad av kontrakt på den här lägenheten? Anmäl ditt intresse och kontakta ansvarig uthyrare genom att mejla EMAIL Lägenheten kan hyras ut snabbt då den hyrs ut utan köpoäng och inkomna intresseanmälningar behandlas löpande. Inflyttningsdatum är enligt överenskommelse. Läs mer om Poängfritt under Våra boendekoncept. Välkommen till Bäckby Centrum! Här har du ett mångsidigt område som erbjuder något för alla. Här bor du med närhet till skolor, förskolor, motionsspår, bibliotek, matbutiker, gym och mycket mer. Området präglas av f...
- Rent
- kr9,349 per month
- Location
- 72473, Västerås
- Rental period
- -
- Verified landlord
- Yes
- Date
- Today
- Available
- Available now
- Utilities
- Contact landlord
- Deposit
- Contact landlord
- Prepaid rent
- Contact landlord
Location