2 room apartment in Västerås
-
Area
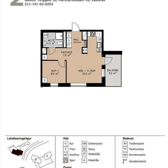
- 45 m²
-
Property type
- Apartment
-
Rooms
- 2 rooms
Available now
Välkommen till Bäckby Centrum! Här har du ett mångsidigt område som erbjuder något för alla. Här bor du med närhet till skolor, förskolor, motionsspår, bibliotek, matbutiker, gym och mycket mer. Området präglas av flera fina grönområden och mötesplatser med aktiviteter. Från Bäckby har du närhet till Erikslunds köpcentrum och bra kommunikationer till Västerås City. Här har du en gemensam takterass med ytor för avkoppling, gemenskap och lek. För bästa boendemiljö är det rökfritt i husen och den direkta omgivningen. Förråd som tillhör läge...
- Rent
- kr9,349 per month
- Location
- 72474, Västerås
- Rental period
- -
- Verified landlord
- Yes
- Date
- Today
- Available
- Available now
- Utilities
- Contact landlord
- Deposit
- Contact landlord
- Prepaid rent
- Contact landlord
Location