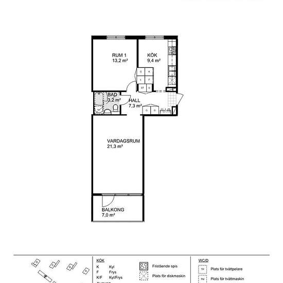
2 room apartment in Västerås
-
Area
- 56 m²
-
Property type
- Apartment
-
Rooms
- 2 rooms
Available now
Är du intresserad av kontrakt på den här lägenheten? Anmäl ditt intresse och kontakta oss så snart som möjligt genom att mejla EMAIL eller ringa 021-397203 alternativt 021-39 70 00. Lägenheten kan hyras ut snabbt då den hyrs ut utan köpoäng och inkomna intresseanmälningar behandlas löpande. Läs mer om Poängfritt under Våra boendekoncept. Inflyttningsdatum är enligt överenskommelse. Välkommen till Vetterstorp – en lugn och trivsam stadsdel i Västerås där naturen möter stadens bekvämligheter! Här får du en unik kombination av grönområden,...
- Rent
- kr8,843 per month
- Location
- 72468, Västerås
- Rental period
- -
- Verified landlord
- Yes
- Date
- Yesterday
- Available
- Available now
- Utilities
- Contact landlord
- Deposit
- Contact landlord
- Prepaid rent
- Contact landlord
Location