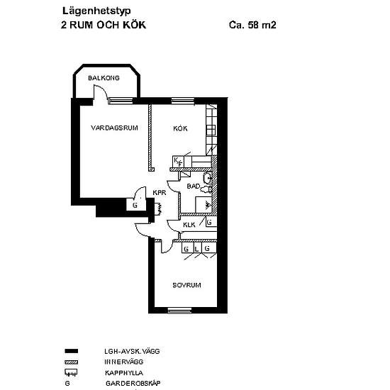
2 room apartment in Västerås
-
Area
- 58 m²
-
Property type
- Apartment
-
Rooms
- 2 rooms
I det omtyckta och välkända området Skiljebo i östra Västerås hittar du ett trivsamt kvarter med både punkthus och lamellhus. Här bor du i ett lugnt och grönt bostadsområde med Skiljebo centrum precis runt hörnet. Centrumet erbjuder allt du behöver i vardagen: matbutik, apotek, pizzeria, klädaffärer, bank och skola – allt samlat på ett bekvämt gångavstånd. I anslutning till torget finns även bibliotek, samlingslokal och kurslokaler som skapar möjligheter för gemenskap och aktiviteter för alla åldrar. Med närhet till både grönområden...
- Rent
- kr7,435 per month
- Location
- 72337, Västerås
- Rental period
- -
- Verified landlord
- Yes
- Date
- Today
- Available
- 2026-01-01
- Utilities
- Contact landlord
- Deposit
- Contact landlord
- Prepaid rent
- Contact landlord
Location