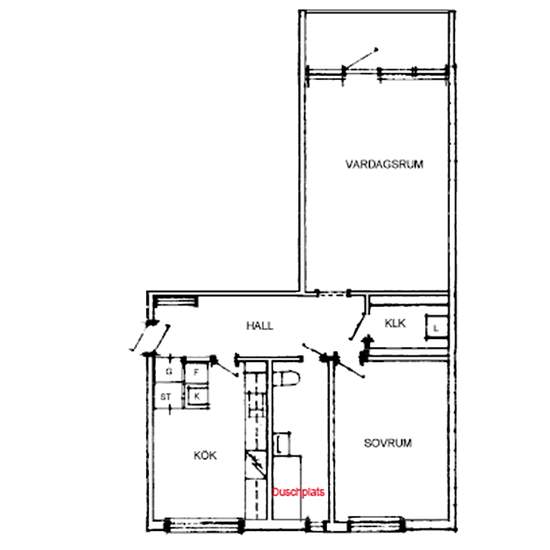
2 room apartment in Västerås
-
Area
- 67 m²
-
Property type
- Apartment
-
Rooms
- 2 rooms
Available now
Hyresrabatt i 12 månader uppdelat i 3 olika perioder. Första perioden: 30% rabatt i 4 månader. Denna hyresrabatt är inkluderad i den hyra som visas i annonsen. Andra perioden: 20% rabatt i 4 månader, hyran blir 7 750:- Tredje perioden: 10% rabatt i 4 månader, hyran blir 8 718:- Ordinarie hyra efter rabatt är 9 687:- Lägenhet med balkong i trivsamt område - välkommen till ditt nya hem. Här bor du i en bostad med två rum och kök, där inget har lämnats åt slumpen. Modernt kök, badrum och fräscha golv gör vardagen bekväm. Råby är ett lugn...
- Rent
- kr6,781 per month
- Location
- 72469, Västerås
- Rental period
- -
- Verified landlord
- Yes
- Date
- 2 days ago
- Available
- Available now
- Utilities
- Contact landlord
- Deposit
- Contact landlord
- Prepaid rent
- Contact landlord
Location