2 room apartment in Stockholm
-
Area
- 57 m²
-
Property type
- Apartment
-
Rooms
- 2 rooms
Available now
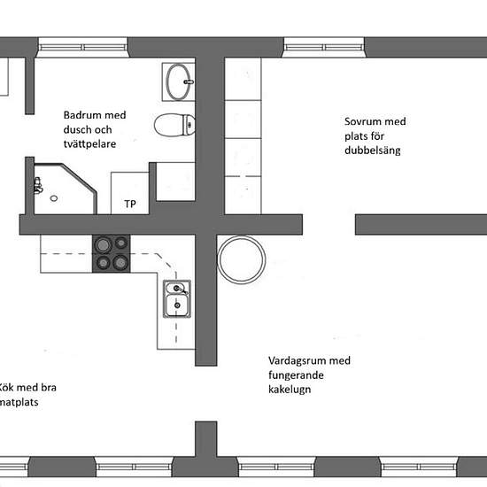
English text below: Välplanerad och charmig lägenhet i lugnt och centralt läge i Gamla Stan uthyres långsiktigt direkt av ägaren. Ägarlägenhet med fri uthyrning. Redo för uthyrning omgående fram till 21:a mars. Lägenheten ligger med några minuters promenad till tunnelbanan eller bussar. Välkomnande hall med bra förvaring. Stort och ljust badrum med tvättställ, värmegolv, duschhörna och egen tvättmaskin och torktumlare. Kök med spis, ugn, mikro, kyl och frys och trevlig matplats med plats för fyra. Vardagsrum med fungerande kakelugn i origi...
- Rent
- kr19,000 per month
- Location
- 11131, Stockholm
- Rental period
- -
- Verified landlord
- No
- Date
- Today
- Available
- Available now
- Utilities
- Contact landlord
- Deposit
- Contact landlord
- Prepaid rent
- Contact landlord
Location