2 room apartment in Södertälje
-
Area
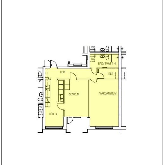
- 68 m²
-
Property type
- Apartment
-
Rooms
- 2 rooms
Available now
Nu finns möjlighet att hyra en rymlig och välplanerad 2 på hela 68 kvm. Lägenheten erbjuder ett stort och ljust vardagsrum som enkelt kan delas av för att skapa ett extra rum, exempelvis ett sovrum eller kontor – perfekt för flexibel planlösning. Bostaden har ett trivsamt sovrum, ett renoverat kök med plats för matbord samt en praktisk klädkammare med gott om förvaringsutrymme. (observera att bilderna kan vara spegelvända i lägenhet, då vi har generella bilder)
- Rent
- kr10,386 per month
- Location
- 15147, Södertälje
- Rental period
- -
- Verified landlord
- Yes
- Date
- Yesterday
- Available
- Available now
- Utilities
- Contact landlord
- Deposit
- Contact landlord
- Prepaid rent
- Contact landlord
Location