2 room apartment in Simrishamn
-
Area
- 77 m²
-
Property type
- Apartment
-
Rooms
- 2 rooms
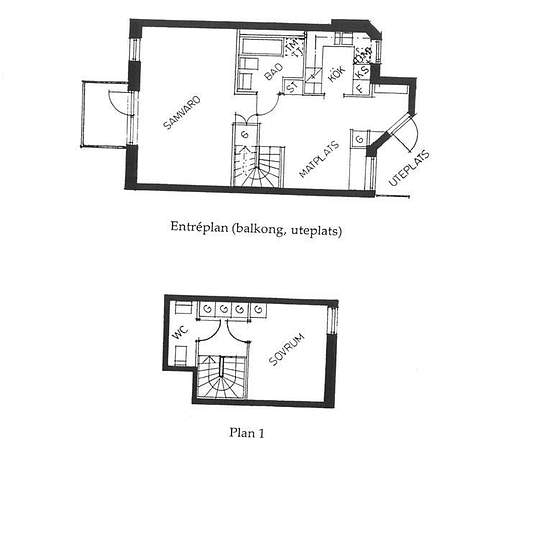
2-room apartment with kitchen in Simrishamn – Near the sea with balcony & patio! Two floors with an open plan: living room, kitchen and dining area on the entrance level, and bedroom and WC on the upper floor (see attached floor plans for details). Enjoy both a lovely balcony and a patio. Dishwasher included in the apartment; possibility to install a washing machine and tumble dryer. Rent: SEK 9,450/month (incl. heating). Move-in February 1 or by agreement. Central Simrishamn Scenic surroundings close to central Simrishamn
- Rent
- kr9,450 per month
- Location
- 27231, Simrishamn
- Rental period
- -
- Verified landlord
- Yes
- Date
- 17 days ago
- Available
- 2026-02-01
- Utilities
- Contact landlord
- Deposit
- Contact landlord
- Prepaid rent
- Contact landlord
Location