2 room apartment in Oxie
-
Area
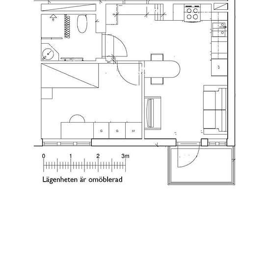
- 34 m²
-
Property type
- Apartment
-
Rooms
- 2 rooms
Här på Campus Oshögha erbjuder vi ljusa bostäder om 1 Rok till 2 Rok med eget kök och badrum. Bra att veta • Garderob i hall och sovrum för smidig förvaring. • Kök är utrustade med kombinerad kyl/frys, spis med ugn och diskbänk. • I hyran ingår värme, internet och kallvattenförbrukning. • En fast avgift på 280 kr/mån för elförbrukning och 140 kr/mån för varmvattenförbrukning tillkommer, detta är inräknat i annonsens hyra. • Hyran är angiven för 2025 års nivå och kommer att justeras för år 2026. • Bilderna är illustrationer, avvikelser kan fö...
- This accommodation has priority for students
- Rent
- kr6,716 per month
- Location
- 23837, Oxie
- Rental period
- -
- Verified landlord
- Yes
- Date
- Yesterday
- Available
- 2026-04-01
- Utilities
- Contact landlord
- Deposit
- Contact landlord
- Prepaid rent
- Contact landlord
Location