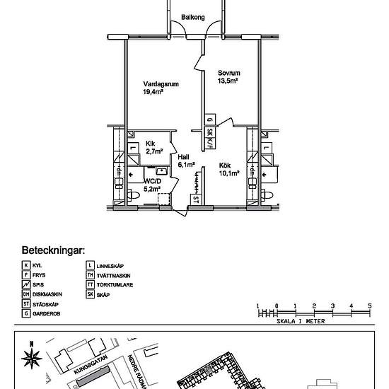
2 room apartment in Motala
-
Area
- 63 m²
-
Property type
- Apartment
-
Rooms
- 2 rooms
Available now
Balcony Electricity not included Elevator Outdoor area: No Hot water included Water included Heating included
- Rent
- kr8,436 per month
- Location
- 59127, Motala
- Rental period
- -
- Verified landlord
- Yes
- Date
- Yesterday
- Available
- Available now
- Utilities
- Contact landlord
- Deposit
- Contact landlord
- Prepaid rent
- Contact landlord
Location