2 room apartment in Luleå
-
Area
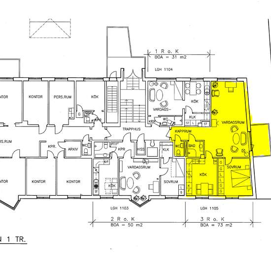
- 73 m²
-
Property type
- Apartment
-
Rooms
- 2 rooms
Välkommen till Forellen 6 Här finner ni nu en fin och rymlig 2 ROK på gågatan i Luleå. Lägenheten har en trivsam planlösning och balkong mot Köpmangatan. I hyran ingår grundutbud kabel-TV. Finns möjlighet till parkering i garage endast ett kvarter bort, här gäller däremot separat kö. Generellt är det familjärt och lugnt i fastigheten, trapphus med hiss och fullt utrustad tvättstuga i källare. Forellen 6 uppfördes 1951 och består av 12 hyreslägenheter och 5 lokaler längs Storgatan. Här bor man i hjärtat av centrala Luleå med ett stort utb...
- Rent
- kr10,388 per month
- Location
- 97231, Luleå
- Rental period
- -
- Verified landlord
- Yes
- Date
- Today
- Available
- 2026-05-01
- Utilities
- Contact landlord
- Deposit
- Contact landlord
- Prepaid rent
- Contact landlord
Location