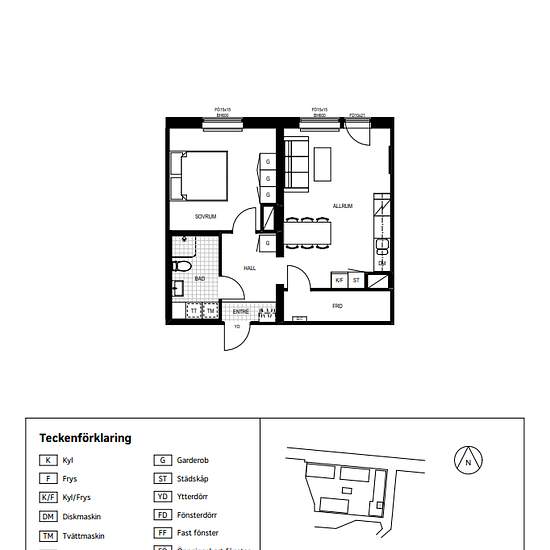
2 room apartment in Kungsängen

Area
54 m²
Property type
Apartment
Rooms
2 rooms

Rent
kr13,154 per month
Rental period
-
Verified landlord
Yes
Date
Today
Available
2026-04-01
Utilities
Contact landlord
Deposit
Contact landlord
Prepaid rent
Contact landlord
Location